| 索引号: | 11341602003165150B/202512-00025 | 组配分类: | 重大决策预公开 |
| 发布机构: | 市自然资源和规划局谯城分局 | 主题分类: | 国土资源、能源 |
| 有效性: | 有效 | 关键词: | 无 |
| 名称: | 关于谯城区2025年第五批次城乡建设用地增减挂钩试点项目完善重点地块图则批前公示 | 文号: | 无 |
| 发文日期: | 2025-12-08 10:39 | 发布日期: | 2025-12-08 10:39 |
根据工作安排,结合乡镇政府需求,我局组织编制了大杨镇、古城镇、观堂镇、牛集镇、沙土镇、魏岗镇等18个重点地块图则,以上地块位于城镇开发边界外,部分位于城镇开发边界内,目前规划成果已编制完成。现按照《中华人民共和国城乡规划法》《安徽省城乡规划条例》等规定进行批前公示,征求公众意见。
一、城镇开发边界外地块重点地块图则主要内容
1、大杨镇详细规划主要内容
(1)大杨村YJX049地块用地性质:1101物流仓储用地,用地面积:6330.7平方米,容积率≥1.0,建筑密度≥40%,绿地率≤5%。

2、古城镇详细规划主要内容
(1)宁小村YJX090地块用地性质:1001工业用地,用地面积:2685.9平方米,容积率≥1.0,建筑密度≥40%,绿地率≤5%。

(2)祖寨村YJX091地块用地性质:1001工业用地,用地面积:2771.4平方米,容积率≥1.0,建筑密度≥40%,绿地率≤5%。

3、观堂镇详细规划主要内容
(1)郭庄村YJX200地块用地性质:1001工业用地,用地面积:4344.7平方米,容积率≥1.0,建筑密度≥40%,绿地率≤5%。
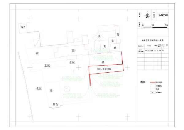
4、牛集镇详细规划主要内容
(1)兑井村YJX270地块用地性质:1001工业用地,用地面积:274.7平方米,容积率≥1.0,建筑密度≥40%,绿地率≤5%。

(2)李集村YJX284地块用地性质:1001工业用地,用地面积:7294.5平方米,容积率≥1.0,建筑密度≥40%,绿地率≤5%。

(3)桥北村YJX285地块用地性质:1001工业用地,用地面积:2810.8平方米,容积率≥1.0,建筑密度≥40%,绿地率≤5%。

(4)宋老家村YJX286地块用地性质:1001工业用地,用地面积:7855.8平方米,容积率≥1.0,建筑密度≥40%,绿地率≤5%。

(5)宋老家村YJX287地块用地性质:1001工业用地,用地面积:10080.6平方米,容积率≥1.0,建筑密度≥40%,绿地率≤5%。

5、沙土镇详细规划主要内容
(1)蒋集村YJX342地块用地性质:1001工业用地,用地面积:4686.4平方米,容积率≥1.0,建筑密度≥40%,绿地率≤5%。
(2)张竹园村YJX343地块用地性质:1001工业用地,用地面积:4497.8平方米,容积率≥1.0,建筑密度≥40%,绿地率≤5%。

5、魏岗镇详细规划主要内容
(1)大陈村YJX404-01、YJX404-02地块用地性质:1101物流仓储用地,用地面积:4538.3平方米,容积率≥1.0,建筑密度≥40%,绿地率≤5%。

(2)刘小庙村YJX405地块用地性质:1101物流仓储用地,用地面积:7226.4平方米,容积率≥1.0,建筑密度≥40%,绿地率≤5%。

(3)前芮村YJX603地块用地性质:1001工业用地,用地面积:7080.6平方米,容积率≥1.0,建筑密度≥40%,绿地率≤5%。

(4)王岗村YJX407地块用地性质:1101物流仓储用地,用地面积:1292.6平方米,容积率≥1.0,建筑密度≥40%,绿地率≤5%。

(5)魏岗村YJX605地块用地性质:1001工业用地,用地面积:16924.3平方米,容积率≥1.0,建筑密度≥40%,绿地率≤5%。

二、城镇开发边界内地块完善详细规划主要内容
1.沙土镇蒋集村YJX342地块用地性质:1001工业用地,用地面积:2975.4平方米,容积率≥1.0,建筑密度≥40%,绿地率≤5%。

二、公示时间
2025年12月8日-2026年1月6日
三、联系方式
联系地址:亳州市自然资源和规划局谯城分局
联系人: 郭帅帅 电话:5520675
四、其它
1、公示图纸仅为示意图,以最终审批为准。
2、公示时间:30天
3、有效反馈意见须在公示期限内提出,并注明联系人真实姓名、电话、地址。
4、我局将在公示期满后综合分析各方意见或建议,充分考虑利害关系人意愿,通过采取听证会、座谈会等形式,进一步听取利害关系人的意见。若无意见或建议我局将按照有关程序依法报批。
2025年12月8日
扫一扫在手机打开当前页